Algemene info




Authentieke langgevelhoeve met diverse mogelijkheden nabij het centrum van Beerse en Den Hout
Ontdek deze unieke langgevelhoeve, centraal gelegen tussen het gezellige centrum van Beerse en het groene Den Hout. Het pand is momenteel opgesplitst in drie aparte wooneenheden, maar biedt eindeloze mogelijkheden voor zowel privébewoning als commerciële activiteiten. Met zijn authentieke charme en behouden originele bouwelementen vormt deze hoeve een zeldzame kans voor wie op zoek is naar een bijzondere eigendom met karakter.
De hoeve bestaat uit drie afzonderlijke appartementen:
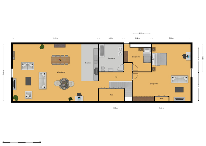
- Het appartement op het gelijkvloers links omvat een inkomhal, badkamer, toilet, leefruimte, ruime keuken, slaapkamer en een wasplaats / berging. (EPC 324 kWh/m² - D)
- Het appartement op het gelijkvloers rechts is ingericht als dokterspraktijk en een omvat een ruime entree met gastentoilet en drie aparte ruimtes die dienst deden als consulatie kamers. (EPC niet residentieel C)
- Het dakappartement omvat gelijkvloers een ruime privatieve inkomhal met berging en trap naar de verdieping, een ruime leefruimte met open keuken, twee ruime slaapkamers en een badkamer. (EPC 371 kWh/m² - D)
Wat dit gebouw zo uniek maakt, zijn de originele bouwelementen die zorgvuldig bewaard zijn gebleven. De gevel van authentieke baksteen, de houten deuren en het rustieke interieur ademen de sfeer van vroeger. Het dak en enkele andere renovatiewerken vragen om wat aandacht, maar de solide basis van deze hoeve biedt een ideale kans om het pand geheel naar eigen wens af te werken.
Of u nu op zoek bent naar een investeringspand, een woonhuis met praktijk aan huis, of een plek voor commerciële activiteiten zoals horeca of kantoorruimtes, deze hoeve biedt volop mogelijkheden. Het pand kan eenvoudig worden omgebouwd afhankelijk van uw wensen en noden.
Video

Interactief plan

Financieel
Ligging
Gebouw
Indeling
Energie
Stedenbouw
G-Score: A 
Doe een bod op dit eigendom
















































