Algemene info




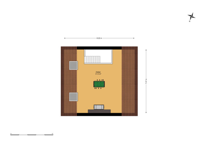
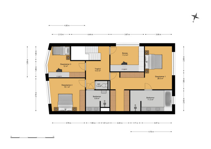
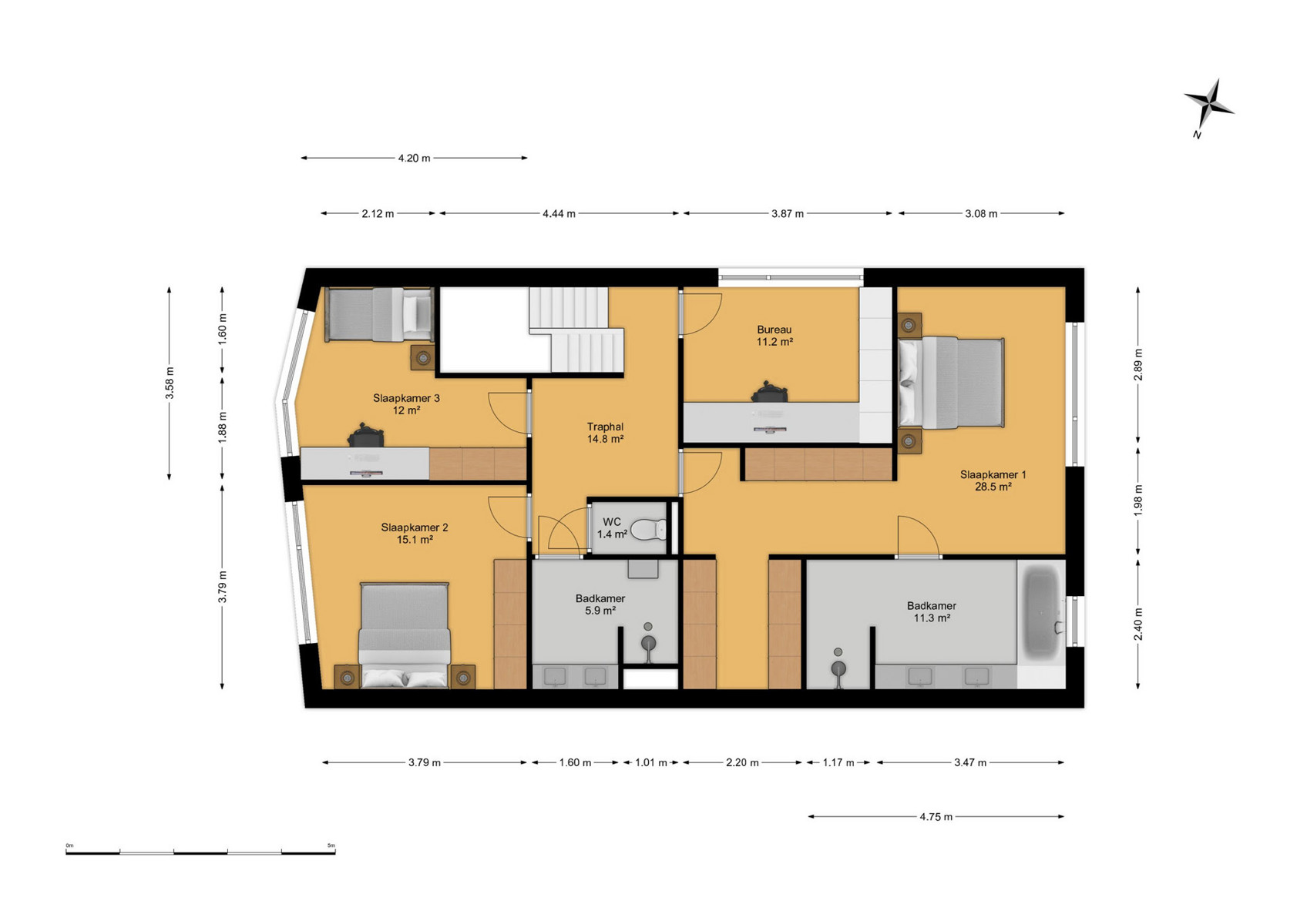
Op het gelijkvloers komt u binnen via de inkomhal met gastentoilet en trap, waarna de woning zich opent naar een lichtrijke leefruimte die mooi in verbinding staat met de tuin en het terras. Aansluitend is er een praktische berging voorzien. De eerste verdieping telt vier volwaardige slaapkamers en twee badkamers, waardoor er ruimte is voor zowel een gezin als logees. De zolder biedt bijkomende mogelijkheden. De tuin met aansluitend terras biedt een fijne buitenruimte om van te genieten. Uw wagen parkeert u gemakkelijk onder de overdekte staanplaats naast de woning.
Dankzij de aanwezige zonnepanelen, warmtepomp en ventilatiesysteem is deze woning energiezuinig en klaar voor de toekomst.
Troeven:
- Rustige ligging in Beerse met goede bereikbaarheid
- Ruime leefruimte met veel lichtinval en tuinzicht
- Zolder met extra mogelijkheden
- Overdekte autostaanplaats
- Energiezuinig met zonnepanelen en warmtepomp
Prijzen en lastenboek zijn beschikbaar op kantoor. Het project voldoet aan de voorwaarden verlaagd tarief "afbraak en werderopbouw". Mogelijkheid tot het aankopen aan 6% BTW. Voor meer informatie kan u contact opnemen met ons kantoor in Beerse op het nummer 014/61.61.64 of via kristof@vastgoedpartners.be.
Interactief plan

Financieel
Ligging
Gebouw
Indeling
Energie
Stedenbouw
Doe een bod op dit eigendom

















