Algemene info





Op het gelijkvloers betreedt u de woning via de inkomhal, die toegang biedt tot de lichtrijke leefruimte. De leefruimte is ingedeeld in een gezellige zithoek en eetruimte. Aansluitend vindt u de keuken, die toegang geeft tot de veranda en de zonnige tuin. Verder beschikt het gelijkvloers over een multifunctionele kamer, die perfect kan dienen als bureau, hobbyruimte of extra slaapkamer, een apart toilet, een badkamer en een handige bergruimte.
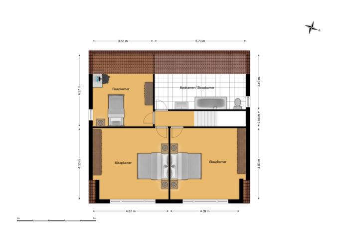
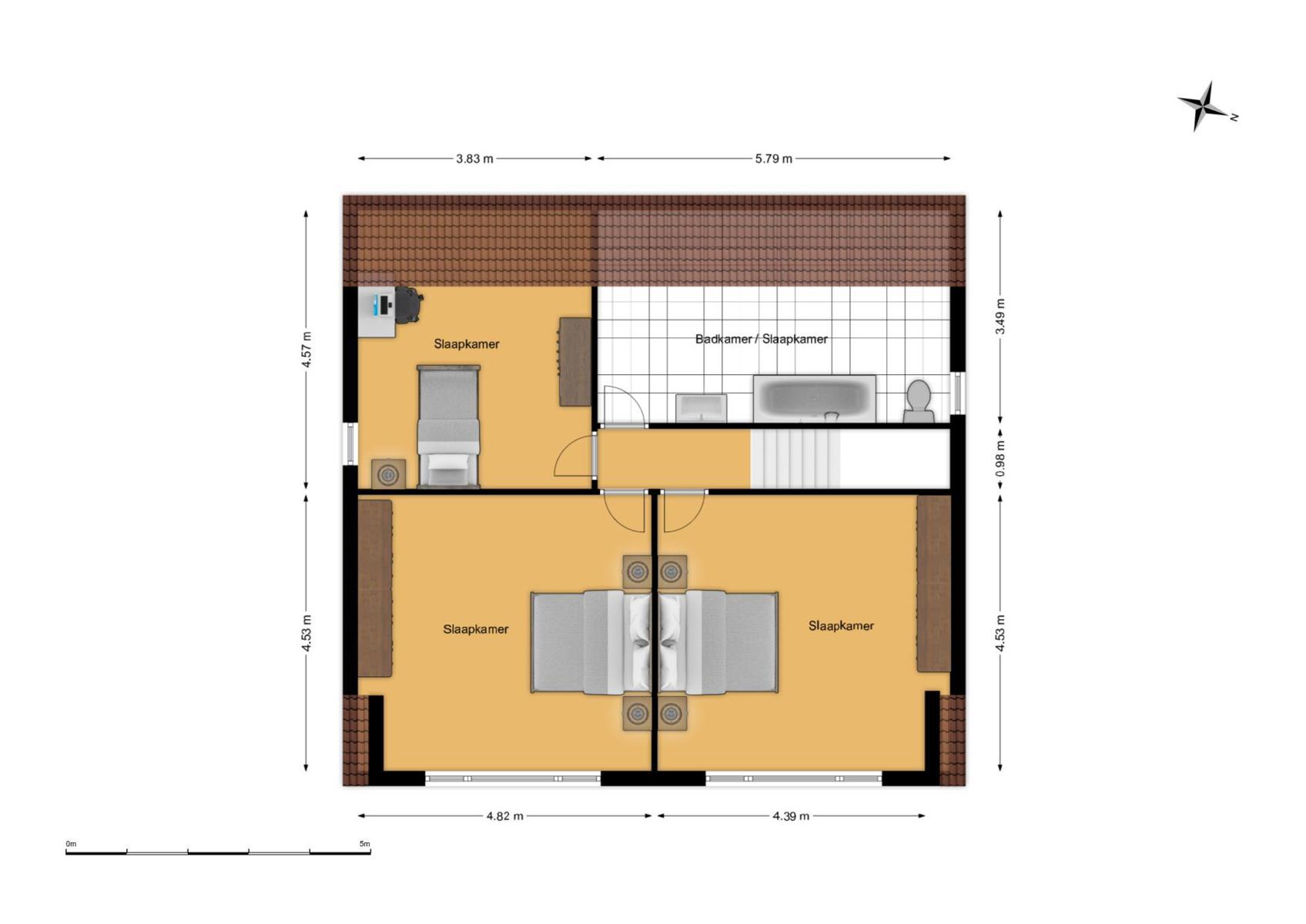
Op de eerste verdieping zijn er 4 ruime slaapkamers, waarvan één nog naar eigen wens afgewerkt kan worden. Deze ruimte kan bijvoorbeeld ook ingericht worden als extra badkamer.
De zuidgerichte tuin is een absolute troef en biedt volop ruimte voor ontspanning en buitenactiviteiten. Dankzij de gunstige oriëntatie geniet u hier de hele dag door van de zon.
Dit pand is onderworpen aan de renovatieverplichting van de Vlaamse overheid voor residentiële gebouwen (behoudens bij sloop binnen 5 jaar na de aankoop). Consulteer voor meer informatie de website van het Vlaams Energie- en Klimaatagentschap via https://www.vlaanderen.be/een-huis-of-appartement-kopen/renovatieverplichting-voor-residentiele-gebouwen
Troeven:
✔ Ruime gezinswoning met tal van mogelijkheden
✔ 4 ruime slaapkamers
✔ Multifunctionele kamer op het gelijkvloers
✔ Zuidgerichte tuin
Video

Interactief plan

Financieel
Ligging
Gebouw
Indeling
Energie
Stedenbouw
G-Score: D 
Doe een bod op dit eigendom


































