Algemene info




In de charmante en karaktervolle Sint-Antoniusstraat in Turnhout bevindt zich dit veelzijdige handelspand met duplexappartement met een bewoonbare oppervlakte van 306m². De ligging combineert historische sfeer met stedelijk gemak: winkels, horeca, scholen en openbaar vervoer zijn op wandelafstand, terwijl de straat zelf rustig en aangenaam blijft. Ook de ring en belangrijke invalswegen zijn vlot bereikbaar, wat dit pand interessant maakt voor zowel zelfstandigen als investeerders.
Het gelijkvloers omvat een open handelsruimte met grote raampartijen en meerdere lichtkoepels die zorgen voor een aangename natuurlijke lichtinval. De ruimte voelt open en uitnodigend aan, ideaal voor een winkel, kantoor of vrij beroep. Achteraan zijn een praktische berging en een afzonderlijk toilet aanwezig, wat het comfort en de functionaliteit verhoogt.
Op de eerste verdieping bevindt zich het woongedeelte met een lichtrijke leefruimte en aansluitend een ruime keuken, volledig uitgerust met vaatwasser, oven en koelkast. Een aparte berging en gastentoilet zorgen voor extra gemak.
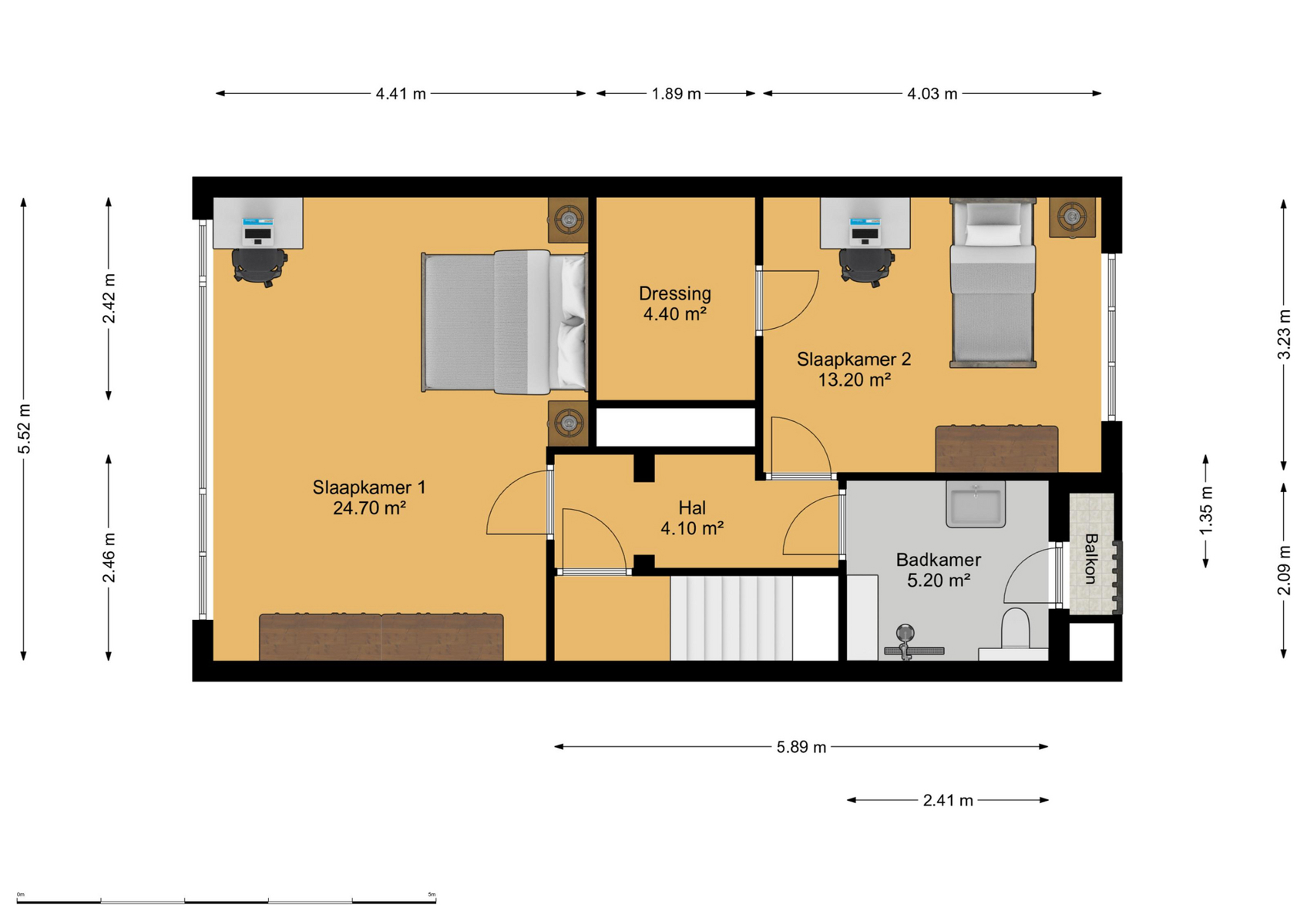
De tweede verdieping biedt twee volwaardige slaapkamers, waarvan één met dressingruimte. De badkamer is netjes ingericht met douche, lavabo en toilet. Een compact balkon aan de achterzijde biedt een aangename buitenruimte midden in de stad.
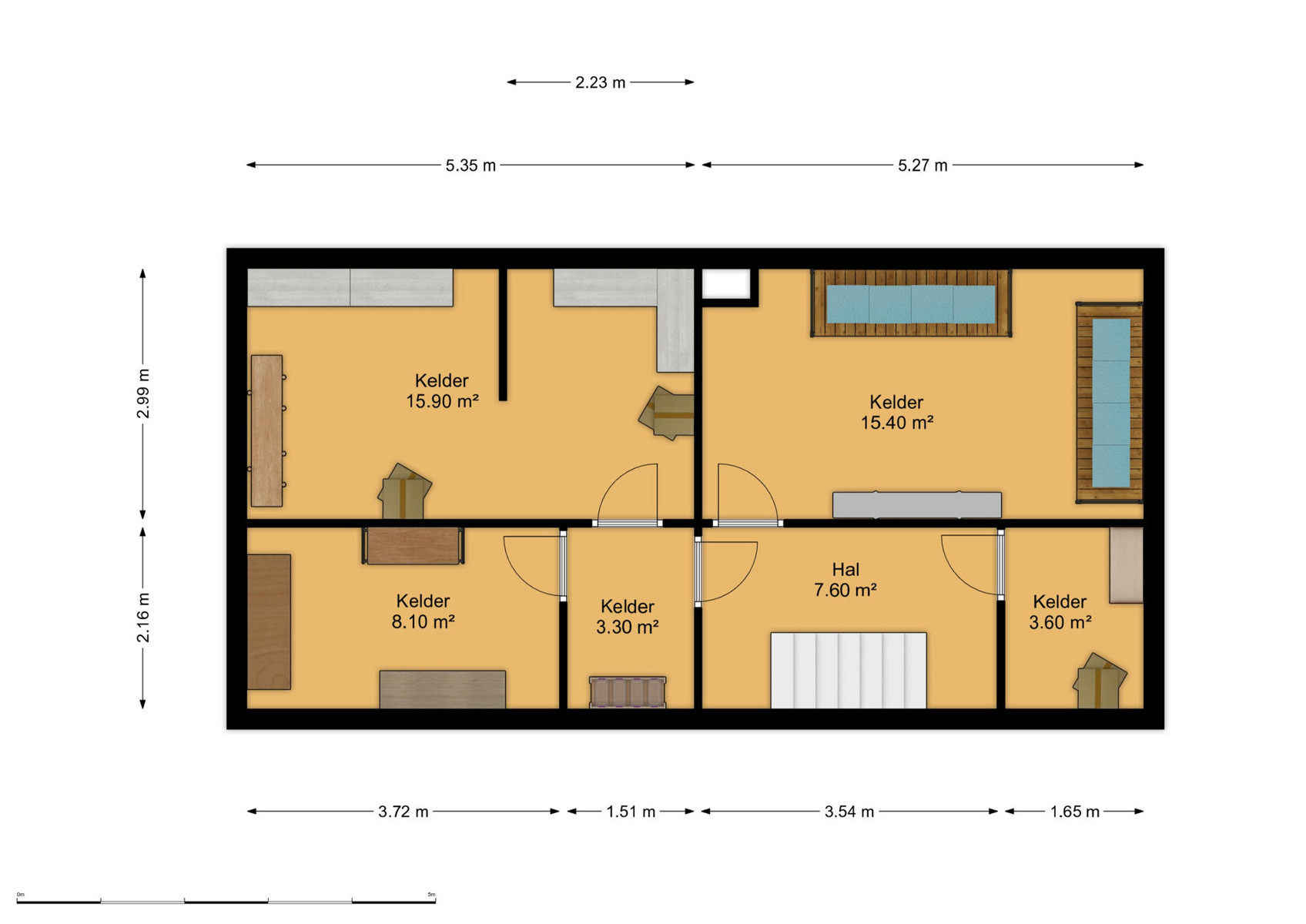
De kelder biedt extra opslagmogelijkheden en kan eveneens dienstdoen als voorraadruimte of technische berging.
Dit pand is onderworpen aan de renovatieverplichting van de Vlaamse overheid voor residentiële gebouwen (behoudens bij sloop binnen 5 jaar na de aankoop).
• Lichtrijke handelsruimte met potentieel
• Duplex met twee slaapkamers en dressing
• Mogelijkheid tot aparte inkom voor het woongedeelte
• Interessant investeringspand met verhuurpotentieel
Video

Interactief plan

Financieel
Ligging
Gebouw
Indeling
Energie
Stedenbouw
Doe een bod op dit eigendom






























