Algemene info





Vlak bij het station van Balen en op wandelafstand van winkels, scholen en openbaar vervoer, bevindt zich deze verzorgde halfopen bebouwing met een bewoonbare oppervlakte van 155 m². De ligging combineert vlotte bereikbaarheid met een aangenaam wooncomfort in een praktische omgeving.
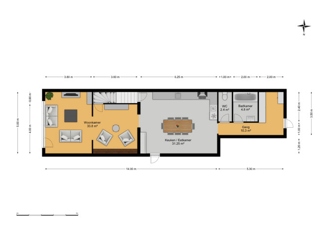
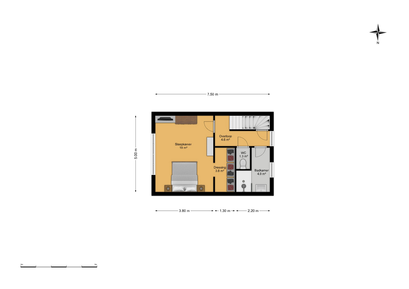
Op het gelijkvloers verwelkomt de lichte leef- en eetruimte je met een aangename openheid en een vlotte verbinding naar de functionele keuken. Verder bevinden zich hier een badkamer met ligbad, een apart toilet en een praktische wasplaats die extra bergruimte biedt. Op de eerste verdieping is er een ruime slaapkamer met aansluitende dressing, een tweede badkamer met douche en een extra toilet. De zolderverdieping is smaakvol ingericht als twee volwaardige slaapkamers, wat deze woning ideaal maakt voor een gezin of wie graag extra hobby- of bureauruimte wenst. De kelder zorgt voor bijkomende opbergmogelijkheden.
Achteraan ligt een onderhoudsvriendelijke westgerichte tuin, waar je in de namiddag en avond volop van de zon kunt genieten in alle privacy. De ruime oprit biedt voldoende plaats voor meerdere wagens, wat het dagelijkse comfort vergroot.
Met een EPC-label C (249 kWh/m²/jaar) is dit een energiezuinige woning zonder renovatieverplichting. Elektriciteit is conform en het pand is asbestvrij — instapklaar en zonder zorgen.
Troeven:
-
Centrale, goed bereikbare ligging nabij station en winkels
-
Instapklaar en energiezuinig (EPC C)
-
Onderhoudsvriendelijke westgerichte tuin
-
Conforme elektriciteit en asbestvrij
-
Ruime oprit met voldoende parkeergelegenheid
-
Extra opbergruimte in kelder
Video

Interactief plan

Financieel
Ligging
Gebouw
Indeling
Energie
Stedenbouw
G-Score: B 
Doe een bod op dit eigendom

































