Algemene info




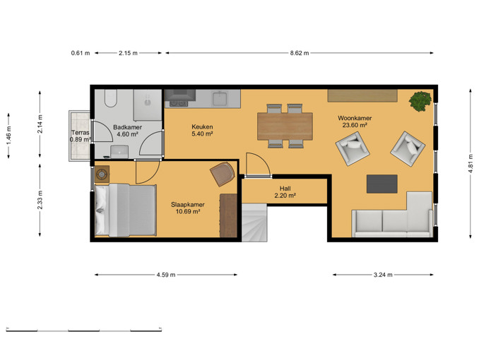
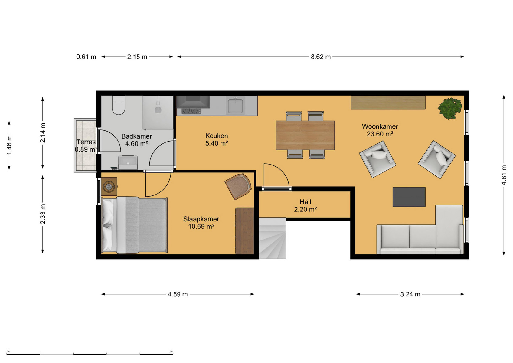
Het appartement omvat een ruime lichte woonkamer met aansluitend de open keuken. De keuken is uitgerust met alle nodige apparatuur. Naast de keuken bevindt zich de badkamer, voorzien van een lavabo, toilet en douche. Verder is er een slaapkamer die voldoende ruimte biedt voor een comfortabel bed en opbergkasten. In de kelder bevindt zich nog een privatieve kelderberging, voorzien van een aansluiting voor wasmachine en droogkast.
Het appartement is momenteel verhuurd, waardoor het eveneens een ideale opbrengsteigendom is.
Bijzonderheden:
- Instapklaar
- Elektriciteit is conform
- Geen gemeenschappelijke kosten
- Kleinschalig gebouw
Video

Financieel
Ligging
Gebouw
Indeling
Energie
Stedenbouw
G-Score: A 
Doe een bod op dit eigendom















