
Algemene info





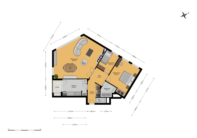
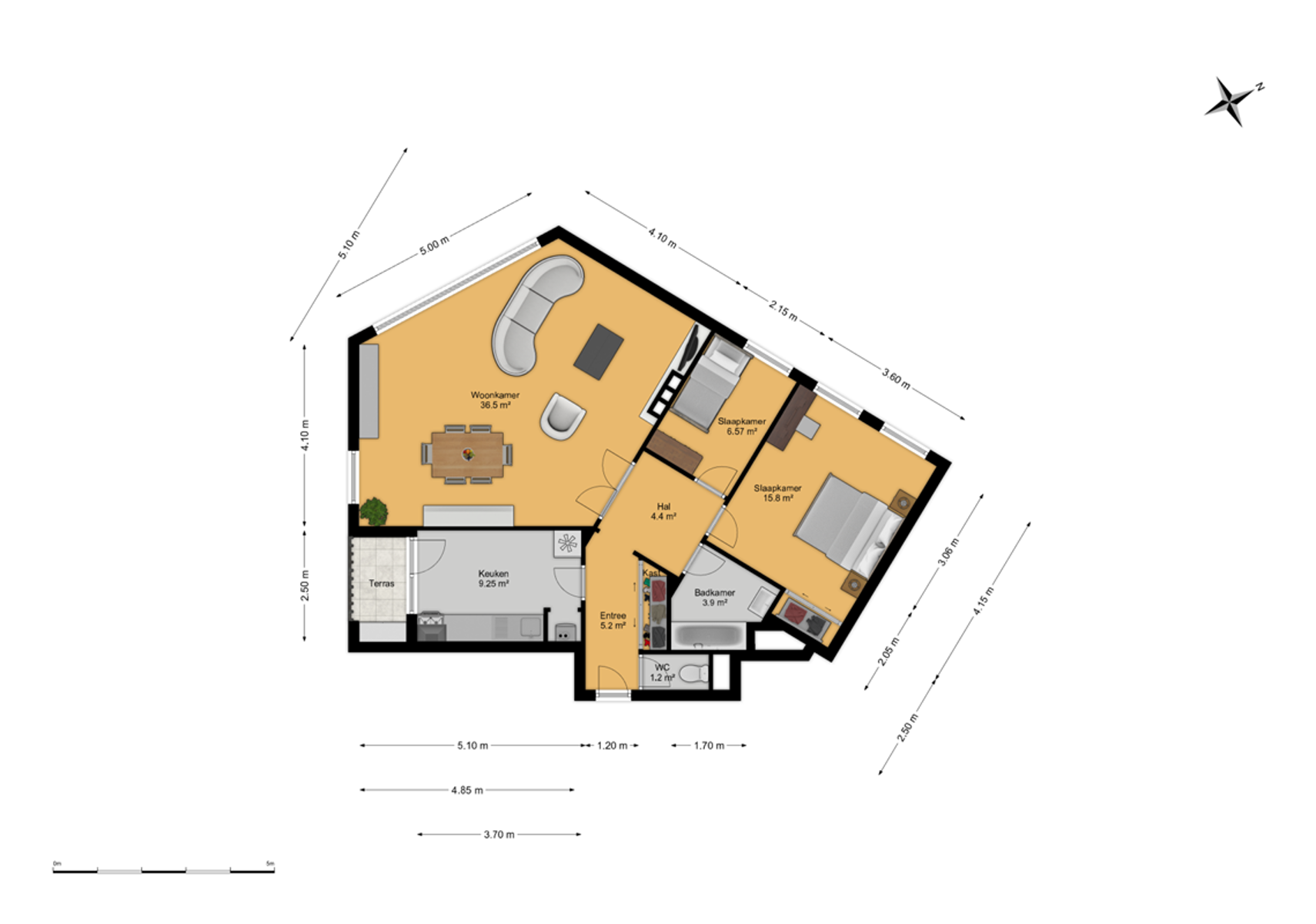
Het appartement ligt op de vierde verdieping en verwelkomt je met een eigen inkomhal met ingemaakte kasten. Aan de rechterkant bevindt zich het apart toilet, terwijl je links toegang hebt tot de keuken met aansluitend een gezellig terras. De ruime en lichtrijke woonkamer sluit naadloos aan en geeft toegang tot een zonnig balkon en uitzicht over de stad. Het appartement beschikt over twee slaapkamers, waarvan de masterbedroom is uitgerust met ingebouwde kasten. De badkamer is voorzien van een ligbad, een enkele wastafel en aansluitingen voor een wasmachine en droogkast.
Extra opbergmogelijkheden zijn beschikbaar in de privatieve kelder. Daarnaast geniet je van twee buitenruimtes: een terras naast de keuken en een balkon aan de woonkamer, beide met een aangename lichtinval en voldoende privacy.
Mogelijkheid tot het huren van een autostaanplaats in directe omgeving.
Het appartement heeft een gunstige EPC-score (label C) en valt daardoor niet onder de renovatieverplichting.
Troeven:
- Centrale ligging vlak bij winkels, openbaar vervoer en de zoo
- Ruime, lichtrijke woonkamer
- Twee terrassen voor extra buitenruimte
- Praktische indeling met veel opbergruimte
- Geen renovatieverplichting
Interactief plan

Financieel
Ligging
Gebouw
Indeling
Energie
Stedenbouw
G-Score: C 


















