Algemene info





Ruime gezinswoning met tuin en garage
In de rustige De Costerstraat in Borgerhout bevindt zich deze aangename gesloten bebouwing met een bewoonbare oppervlakte van 142 m². De ligging is ideaal voor wie centraal wil wonen. Op wandelafstand van winkels, scholen en openbaar vervoer, en met een vlotte verbinding naar het stadscentrum en de belangrijkste in- en uitvalswegen.
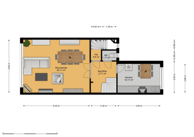
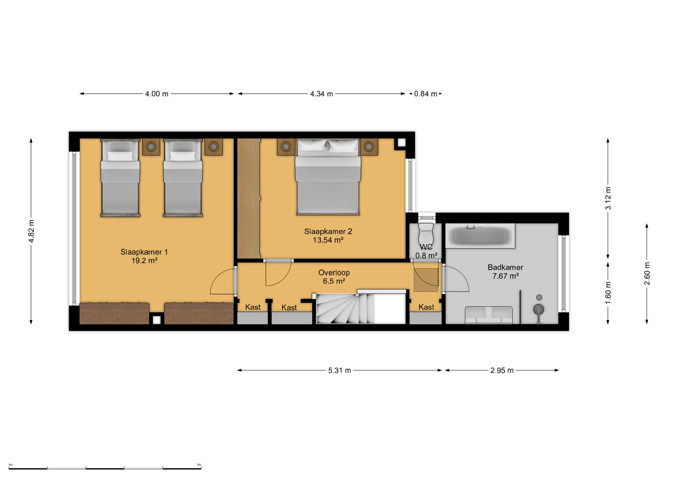
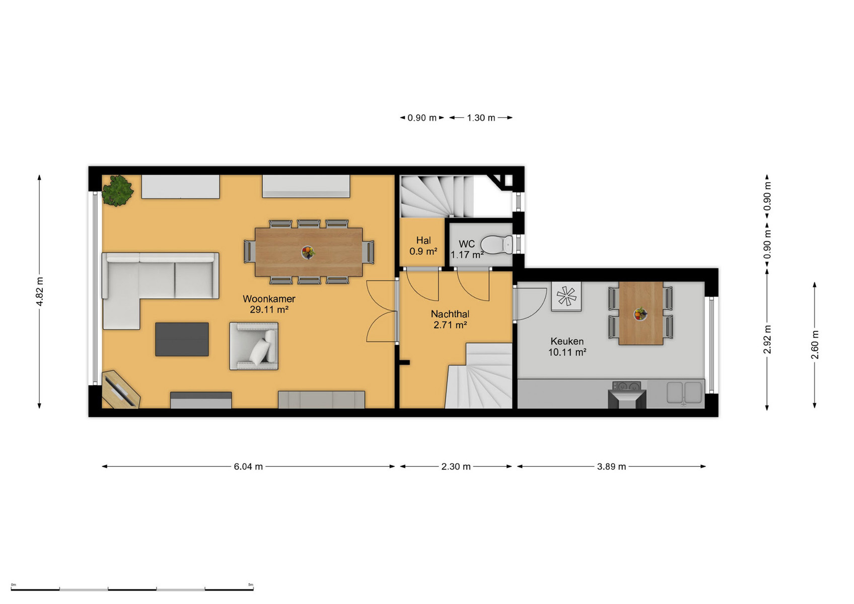
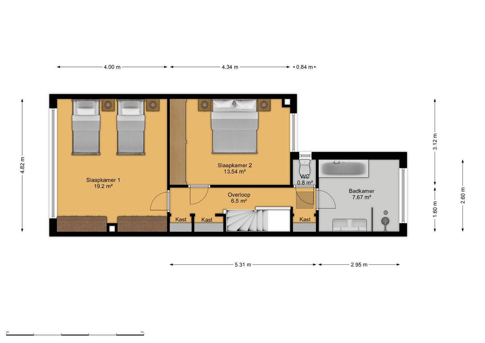
Bij het binnenkomen tref je een inkomhal met directe toegang tot de ruime inpandige garage, waar je bovendien ook voor de poort kan parkeren. Achteraan bevindt zich een extra kamer die perfect kan dienen als slaapkamer, hobbyruimte of wasplaats, en een bureau met zicht op de tuin. De gezellige buitenruimte met klein koertje heeft een oost-zuidoostoriëntatie, waardoor je ’s ochtends en in de vroege namiddag van de zon geniet. Op de eerste verdieping bevindt zich de lichtrijke leefruimte met aansluitend een praktische keuken op gasvuur en een aparte hal met toilet. De tweede verdieping omvat twee ruime slaapkamers, een badkamer met ligbad en wastafel, en een nachthal met ingemaakte kasten die extra bergruimte bieden.
Het pand beschikt over een EPC-score van D (397), geen renovatieplicht.
Troeven:
• Centrale en toch rustige ligging nabij alle voorzieningen
• Inpandige garage + extra staanplaats voor de poort
• Praktische indeling met extra kamer en bureau op het gelijkvloers
• Twee ruime slaapkamers en veel opbergruimte
• Oost-zuidoost gerichte tuin met privacy
Video

Financieel
Ligging
Gebouw
Indeling
Energie
Stedenbouw
G-Score: A 
Doe een bod op dit eigendom
























